De woningen van Talis komen in blok E
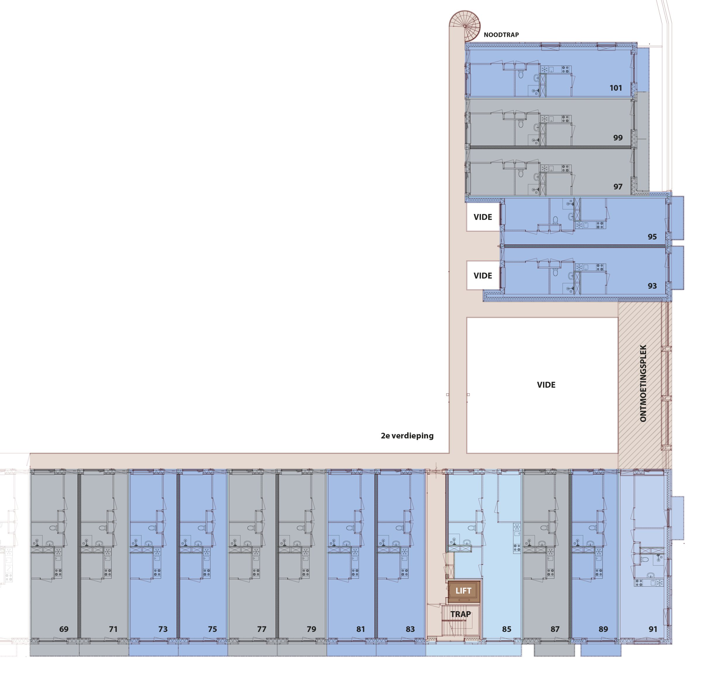
Hier zitten de woningen verspreid over de tweede, derde en vierde verdieping. Op de afbeeldingen hieronder ziet u de appartementen per verdieping. De grijsgekleurde appartementen verhuren we aan Driestroom. Dit betekent dat we alleen de blauwe appartementen verhuren. De drie verschillende kleuren blauw geven de verschillende type woningen weer. Ook staan de huisnummers vermeld in de woningen. Klik op de afbeelding om deze in het groot te bekijken.
Het centrumblok van het Hart van de Waalsprong
Onder het gebouw komt een grote Albert Heijn met een parkeerdek voor het winkelend publiek. Het gebouw is gelegen aan het centrale plein van de nieuwe wijk. Behalve een supermarkt komen er op de begane grond meerdere winkels en horecagelegenheden.
Ellis ligt naast ons nieuwste woongebouw Aaron.

Een overzicht van de ligging van de verschillende gebouwen in het Hart van de Waalsprong


